Villa Ekerum
Gästbokningsinformation Villa Ekerum - Kalmarsundsgatan 23
Tack för att du valt att boka vår underbara sommarvilla
på Ekerum, Öland. Villan är belägen inom Ekerum golfresort precis bredvid
fairway vid hål 17 på golfbanan Långe Jan. Utsikten på uteplatserna är magnifik och varierande. På ena sidan av Villan har ni utsikten över havet med solnedgång och på
andra sidan har ni fairway och greenområde. Det är gångavstånd till alla aktiviteter och svalkande bad. Välkomna hem till oss!
HUSFAKTA
Byggår: 2021
Boyta: 140 m2
Antal sovrum: 3-4 st
Antal sovplatser: 6 st + 4 st
Byggnadshöjd: 6,6 m
Husdjur: Inte tillåtet
Rökning: Nej
BYGGNADSBESKRIVNING
Grund: Gjuten betongplatta med underliggande isolering
Fönster: Elit 3-glas aluminiumbeklädda träfönster
Uppvärmning: Nibe 750 fighter frånluftsvärmepump, vattenburen golvvärme på bottenvåning, radiatorer på övervåning
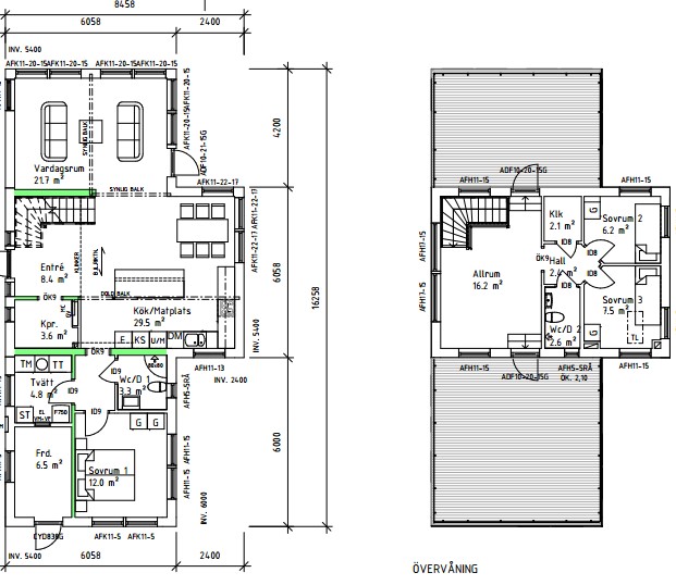
Planlösning
Nedan bilder har mindre avvikelse än i verkligheten med tanke på möblemang.
Sängplatser nedervåning:
2 st i sovrum 1, dubbelsäng 180 cm
2 st i bäddsoffa vardagsrum, dubbelsäng, rum avdelas med draperi om så önskas
Sängplatser övervåning:
2 st i sovrum 3, dubbelsäng 160 cm
2-3 st i sovrum 2, familjesäng, uppe 90 cm + nere 120 cm
2 st i bäddsoffa allrum, dubbelsäng

Skala 1:50
Om Villa Ekerum & omgivningar
VILLA EKERUM
Villan är placerade mitt i naturen och den omgivande golfbanan. Villan breder ut sig i öst-västlig riktning för att ta vara på utsikten och sollägen. Fasaderna har ett modernt utvändigt utseende med flackt tak, liggande panel och färgsättning som harmonierar med den omgivande naturen.
Invändigt utmärks planlösningen med stora sociala ytor för umgänge. Redan i entrén blickar man fram mot en matsal och kök som ligger vid sidan om men ändå i öppet samband med matplats. Vardagsrummet intill har generöst med fönster mot utsikten och grönskan. Övervåningens allrum har stora fönster åt tre väderstreck. Där finns två terrasser med bedårande utsikt mot sundet, havet respektive golfbanan.
BESKRIVNING AV RUM:
Undervåning:
Välkomnande hall med stora förvaringsmöjligheter för ytterkläder direkt till höger innanför ytterdörren. Väl tilltaget kök med plats för 10-12 personer runt middagsbordet. Köket är ett fullutrustat HTH-kök med helt nya vitvaror från Miele som erbjuder en modern matlagning på kvalitetsprodukter. En stor och öppen sällskapsyta erbjuds i vardagsrummet som hänger ihop med köket i en öppen planlösning. Vardagsrummet har generöst med fönster mot utsikten och grönskan. Här erbjuds också en av två TV-apparater och det finns även en bäddsoffa av högsta kvalité som kan bli en dubbelsäng. Villans största badrum med dusch finns på undervåningen och mittemot ligger en väl tilltagen tvättstuga med tvättmaskin och torktumlare. I samband med detta finns även villans största sovrum med en dubbelsäng.
Övervåning:
När ni kommer upp för den ljusa trappan landar man i ett härligt sällskapsrum med soffa och TV. Vi brukar kalla det barnens allrum. Övervåningens allrum har stora fönster åt tre väderstreck. Där finns två terrasser med bedårande utsikt mot sundet, havet respektive golfbanan. Soffan är en modern bäddsoffa som även kan utnyttjas som sängplats för två personer. Ett ljust och fint badrum med dusch och toalett ligger i anslutning till de två sovrummen. Det finns goda möjligheter till förvaring i en walk-in garderob. Det ena sovrummet har en familjesäng som enkelt kan användas för tre personer. I det andra sovrummet finns en dubbelsäng.
Uteplatser:
Det finns 3 st uteplatser på Villa Ekerum. Den största är på undervåningen som är ett trä-däck som går runt större delar av huset. På övervåningen finns det två terrasser i olika väderstreck med bedårande utsikt mot sundet, havet respektive golfbanan.
SERVICE OCH AKTIVITETER
Det är en kort promenads avstånd till sol, bad och en av Sveriges mest kompletta anläggningar - Ekerum Resort, Öland. Detta resort har länge tillhört de främsta golfanläggningarna i Sverige. Med två 18-hålsbanor och en 9-hålsbana, erbjuds bra golf för alla - från nybörjare till proffs. Ekerum vann de prestigefyllda utmärkelserna Världens mest Miljövänliga Golfanläggning och Sveriges bästa Golfhotell på World Golf Awards 2017.
Men Ekerum är så mycket mer än bara golf. Valen är många när det kommer till de aktiviteter som erbjuds. Padeltennis, tennis, boule, motionsslingor för löpning och mountainbike och gym. Kanske är det kombinationen av en fantastisk restaurang med högklassig mat, ett mysigt spa, en pizzeria och satsningen på det aktiva livet som gör Ekerum till en av Sveriges mest intressanta platser att semestra och uppleva.
SOLEN OCH VINDARNAS Ö
Öland är en välbesökt, vacker och helt unik ö. Här finns gott om olika naturslag. Skog, milslånga sandstränder och det speciella landskapet på Alvaret. Stora Alvaret är nästan fyra mil långt. Marken utgörs i huvudsak av trädlös hedmark där grunden är i kalksten. Kargt och lite öde, men fantastiskt vackert. Det finns en anledning att Stora Alvaret tillsammans med Södra Ölands odlingslandskap har utsetts till ett av UNESCOS världsarv.
Upplev det du med! Öland är levande hela året om. På sommarhalvåret kommer besökare från hela världen hit. Vi förstår varför. Här finns mycket att uppleva, bl.a gott om badstränder av olika karaktär, båtliv, natur, restauranger, nattliv, fågelliv och charmiga små loppisar. När sommaren tonar ut och den färgglada hösten tar vid stoltserar ön med en ytterst populär skördefest. Ölands skördefest sägs vara Sveriges största. En mat- och kulturupplevelse utöver det vanliga. Årets odlingar ska skördas och besökarna låter sig väl smaka.